Études de faisabilité
Notre longue expérience est mise à votre service pour réaliser des études de faisabilité

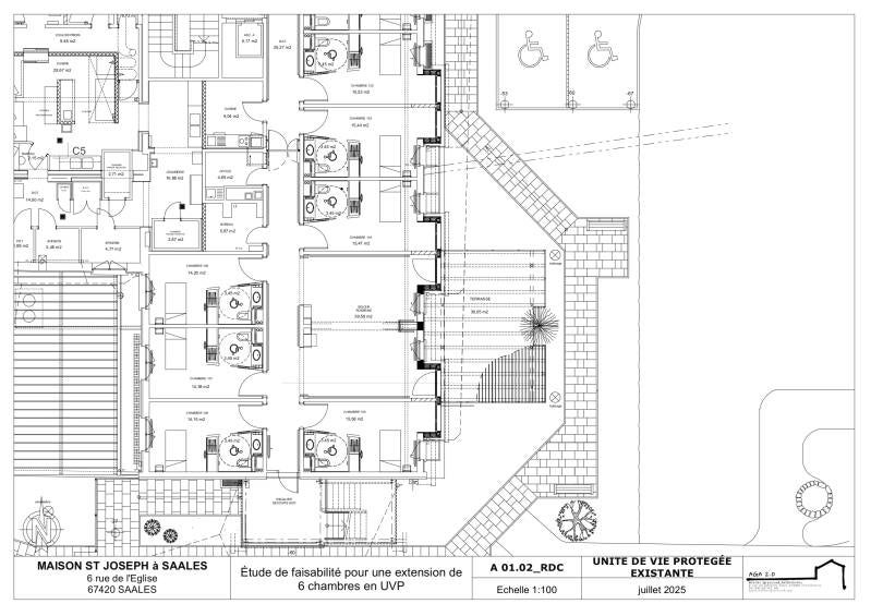
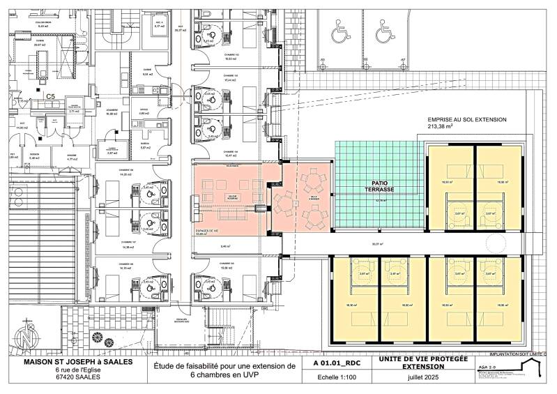
Projet d'extension d'une unité Alzheimer à SAALES
La Fondation qui gère cette maison de retraite souhaite agrandir son Unité de Vie Protégée (UVP) actuellement composée de 8 lits afin de la porter à 14 lits.
Une étude de faisabilité a été réalisée afin de donner à voir à la Fondation dans quelle mesure une extension est possible. En effet, cette dernière doit prendre en compte non seulement le contexte existant, les règles d'urbanisme ainsi que les différentes normes (ERP, PMR, incendie, etc).
Cette étude est également assortie d'une estimation sommaire afin de déterminer une enveloppe budgétaire pour le projet d'extension et permettre la réalisation du montage financier.

Projet de construction d'un Foyer d'Accueil Spécialisé à THANN
La Fondation Saint-Sauveur projette la construction d’un nouvel établissement, mieux adapté aux besoins de la structure. Ce foyer d’accueil spécialisé (FAS) comprendra 84 chambres, des ateliers, des services généraux (grande cuisine, buanderie, etc.) ainsi que les locaux administratifs.
Une étude de faisabilité a été menée afin d’évaluer la possibilité de réaliser ce projet sur le terrain qui lui est destiné. Celui-ci présente en effet une forte déclivité, avec un dénivelé d’environ 20 mètres entre le point haut et le point bas. Par ailleurs, l’esquisse du projet doit intégrer à la fois ces contraintes topographiques, les règles d’urbanisme en vigueur et l’ensemble des normes applicables (ERP, accessibilité PMR, sécurité incendie, etc.).
Cette étude est également accompagnée d’une estimation financière sommaire, destinée à définir une enveloppe budgétaire prévisionnelle pour le projet de construction neuve et à permettre l’élaboration du montage financier.
Estimation : 12 550 000 euros HT